Univerzitetna knjižnica Maribor

UNIVERZITETNA KNJIŽNICA MARIBOR

 

Lokacija: Gospejna ulica 10

Arhitekt: Branko Kocmut; Miro Zdovc (notranja oprema)

Čas nastanka: 1986-1988

 

Univerzitetna knjižnica Maribor ima dolgo tradicijo. Njene začetke postavljajo v leto 1903, ko je nekaj mariborskih izobražencev ustanovilo Zgodovinsko društvo za Slovensko Štajersko in že na ustanovni seji 28. maja imenovalo društvenega knjižničarja - umetnostnega zgodovinarja dr. Avguština Stegenška, ki je še v istem letu uredil društveno knjižnico v prostorih deškega semenišča v današnji Mladinski ulici 12 in pričel z izposojo. V letu 1961 je ob ustanovitvi Združenja visokošolskih zavodov v Mariboru takratna študijska knjižnica prevzela vlogo osrednje knjižnice mariborskega visokega šolstva. Ob ustanovitvi Univerze v Mariboru (1975) je knjižnica postala enakopravna članica mariborske univerze in dobila novo ime - Univerzitetna knjižnica Maribor. Knjižnica se je od leta 1903 večkrat selila, leta 1951 pa je dobila prostore v stavbi na vogalu med Prešernovo ulico in Partizansko cesto, ki pa ob hitrem razvoju mariborskega visokega šolstva kmalu niso več zadoščali. Novogradnjo so sicer načrtovali že leta 1950, a brez uspeha. Ob ustanovitvi Združenja visokošolskih zavodov v Mariboru leta 1961 so knjižničarji obnovili idejo o novogradnji in predlagali lokacijo na zemljišču na zahodni strani nekdanje Mestne hranilnice (arhitekt Adolf Baltzer, 1884-1886). Že takrat je bilo predvideno, da bodo ob ustanovitvi univerze nekdanjo hranilnico preuredili v rektorat. Leta 1967 je občinska urbanistična komisija za potrebe nove knjižnične stavbe rezervirala območje med Slomškovim trgom, Strossmayerjevo in Miklošičevo ulico, natančnejšo lokacijo pa je potrdila leta 1976. V razpravi je bilo sicer več območij, tudi na desnem bregu Drave, kar je bilo povezano z različnimi pogledi na vlogo nastajajočega visokega šolstva v strukturi takrat še cvetočega industrijskega mesta. Leta 1976 je bilo rektoratu skupaj s knjižnico odmerjeno eno najodličnejših območij mesta v njegovem najožjem središču, v njuni neposredni bližini pa se poleg stolnice nahajajo še najpomembnejše mariborske kulturne ustanove. Slabost lokacije je razmeroma majhna gradbena parcela, ki ne omogoča nadaljnje širitve. Projektant je moral za zadovoljitev prostorskih potreb predvideti zadostno število etaž, hkrati pa upoštevati spomeniško-varstvene zahteve in načrte prilagoditi okoliški historični arhitekturi.

Povezava bodočega rektorata in nove knjižnice je pomenila nastanek univerzitetnega središča v najožjem jedru starega mesta. Leta 1978 je Branko Kocmut (1921-2006) pripravil idejni projekt, ki pa je imel že dva predhodnika. Aleš Vodopivec (roj. 1949) je leta 1973 izdelal idejni načrt za knjižnico na sedanji lokaciji, leta 1978 pa je Marlenka Kiker pod mentorstvom prof. Toneta Bitenca zagovarjala diplomsko nalogo z enako vsebino, stavbo pa je predvidela med Slovensko in Gregorčičevo ulico. Leta 1979 je bil imenovan gradbeni odbor, do leta 1980 pa je bilo pripravljeno zemljišče; izselili so stanovalce in podrli hiši v Orožnovi ulici 4 in 6. Tik pred načrtovanim pričetkom gradnje so bila vsa dela ustavljena zaradi restrikcij, ki jih je ob gospodarski krizi sprožila vlada SFRJ.

Gradnja je z oznako nacionalno pomembne investicije stekla šele v letu 1986. Velike zasluge za uspešno vodenje priprav na gradnjo in same gradnje ima takratni ravnatelj dr. Bruno Hartman (1924-2011; ravnatelj je bil med letoma 1965 in 1989), ki je izdelal tudi izhodišča za idejni projekt nove knjižnice in o potrebi po novi stavbi napisal veliko prispevkov poljudnega in uradnega značaja. Idejo je vztrajno negoval vse do njene realizacije. Novo stavbo Univerzitetne knjižnice Maribor so slovesno odprli 25. novembra 1988, ko so knjige že preselili iz stare na novo lokacijo. Selitev pa so pričeli simbolično: »živa veriga«, ki se je vila od Prešernove do Gospejne ulice, se pravi, da je v smeri vzhod - zahod prečkala celotno staro mestno jedro, je bila ena najbolj množičnih kulturnih javnih manifestacij v Mariboru.

Že Vodopivčev idejni projekt je predvidel, da naj bi se stavba knjižnice naslonila na zahodno pročelje nekdanje Mestne hranilnice, s svojo maso pa naj bi segala do Gospejne ulice. Branko Kocmut te tlorisne zasnove ni bistveno spremenil, jo je pa razčlenil. Bistvena razlika med idejnima projektoma je v orientaciji zgradbe. Vodopivec je vhod v knjižnico povezal z vhodom v bodoči rektorat. Uporabniki naj bi se najprej podali skozi avlo rektorata in šele nato vstopili v knjižnico; novo poslopje naj bi funkcioniralo kot prizidek. Kocmut je vhod postavil na Gospejno ulico in poudaril stavbo knjižnice kot avtonomno arhitekturo.

Stavba Univerzitetne knjižnice Maribor se z vzhodno stranico naslanja na zgradbo rektorata. Tloris meri 61 x 35 m, v višino pa dosega 24 m. Ima sedem etaž, od katerih sta dve kletni. Celotna uporabna površina znaša 11.519 m2. Arhitekt je pri načrtovanju uporabil osnovno mero 8,40 x 8,40 m, ki so mu jo predlagali knjižničarji - to je merska enota, ki jim omogoča največ kombinacij pri postavljanju knjižničnega gradiva.

Lokacija za novogradnjo je v bistvu dokaj tesna, načrti pa so morali biti tudi prilagojeni spomeniško-varstvenim zahtevam zaradi ohranjanja značaja mestnega središča. Kocmut, ki je tudi z drugimi projekti dokazal smisel za stik novega s starim, je upošteval gabarite okoliških zgradb. Pritličje zahodnega pročelja je umaknil navznoter in ustvaril pokrito območje za pešce in kavarniški vrt, navznoter pa je zamaknil tudi dve gornji nadstropji, ki ju z ulice skoraj ne zaznamo. Čeprav je stavba umeščena na dokaj tesen prostor med starejšimi hišami, pa je zaradi velikih okenskih površin na zahodni strani in zaradi spretno postavljenih dodatnih dovodov svetlobe na diagonalnih stranicah, dobro osvetljena z naravno svetlobo.

Na zunanjščini se nam stavba predstavlja kot spoj dveh enot, kar je splošna značilnost Kocmutovega načrtovanja. Visok in ozek objekt je prislonjen ob nekdanjo hranilnico (zdaj rektorat Univerze v Mariboru); z njo se ujema po višini in širini, v smeri proti zahodu pa se južna in severna stranica nesimetrično diagonalno zamakneta. V ostenju tik ob stiku s stavbo rektorata se pojavljata navpična niza manjših okroglih oken, diagonalno zamaknjene stene pa po višini prvega, drugega in tretjega nadstropja prekinjajo visoke, ozke in zastekljene reže. Tik pod ravno streho teče gost niz pravokotnih oken, ki osvetljujejo prostore v četrtem nadstropju. Okenski niz tudi zaradi temne kovinske obloge delujejo kot poudarjen venec; oblikovno korespondira z vencem na pročelju sedanjega rektorata, hkrati pa je nadvse soroden zaključku novih pročelij Slovenskega narodnega gledališča Maribor, ki so ga dograjevali nekaj let pred tem po načrtih Branka Kocmuta in njegovega sina Petra. To visoko stavbno telo oklepa za dve etaži nižji objekt, ki pa je po svojem značaju raznolik. Zahodni del tega nižjega objekta sloni na stebrih. Pokrita pasaža v parterju je namenjena pešcem in kavarniškemu vrtu, hkrati pa stebrišče prispeva k lahkotnejšemu videzu celote. Skozi velike zastekljene stene pritličja lahko opazujemo dogajanje v pritličju knjižnice, v kavarni in nočni čitalnici (prvotno knjigarni). V severozahodnem delu ta nižji objekt izkazuje sorodno obdelavo stene kot jo opažamo na visokem delu. Severno in severni del zahodnega pročelja sta polni steni, ki ju prekinja le niz okroglih oken pod ravno streho. Diagonalno zalomljeni vogal med Miklošičevo in Gospejno ulico zaznamujejo navpičnice zastekljenih rež. Nad vhodom v pritličju se zahodna stena dvakrat diagonalno zalomi (tudi tu skozi navpične reže v notranjost priteka svetloba). Daljši del zahodnega pročelja južno od vhoda je oblikovno povsem drugačen - v njem prepoznamo značilno arhitekturno govorico Branka Kocmuta. Stena se uveljavlja z velikimi okni z zunanjimi senčili, ki učinkujejo z drobnim rastrom vodoravnic. Prevladujoči ritem vodoravnic prekinja osem  navpičnih nizov balkončkov. Za Branka Kocmuta značilen motiv pomola se je na stavbi UKM uveljavil v svojem negativu; balkončki, zaščiteni z ograjo iz navpičnih kovinskih letev, so umaknjeni v notranjost pročelja. Južno pročelje nižjega stavbnega bloka deloma še izkazuje tovrstno obravnavo, vendar se v smeri proti vzhodu polagoma spreminja v način, izražen na severni strani. Manjša površina z značilnimi Kocmutovimi okni in zunanjimi senčili je le še interpolacija v ostenje bolj masivnega značaja.

Masivnejši deli stavbnega plašča niso značilni za arhitekturo Branka Kocmuta, ki je stremel za lahkostjo konstrukcij in ki je s skeletno gradnjo omogočal velike zastekljene površine na obodu. Smiselna je primerjava s prenovo Slovenskega narodnega gledališča Maribor v neposredni bližini; projekte je pripravil Branko Kocmut (pri čemer je že od začetka sodeloval njegov sin Peter), nad njihovo izvedbo (1978-1993) pa je bedel Peter Kocmut, ki je s sodelavci v določenih segmentih tudi posegel v očetove načrte oz. jih je dopolnil. Branko Kocmut se je namreč leta 1981 upokojil, v naslednjem obdobju pa mu je sodelovanje pri projektu oteževala bolezen.

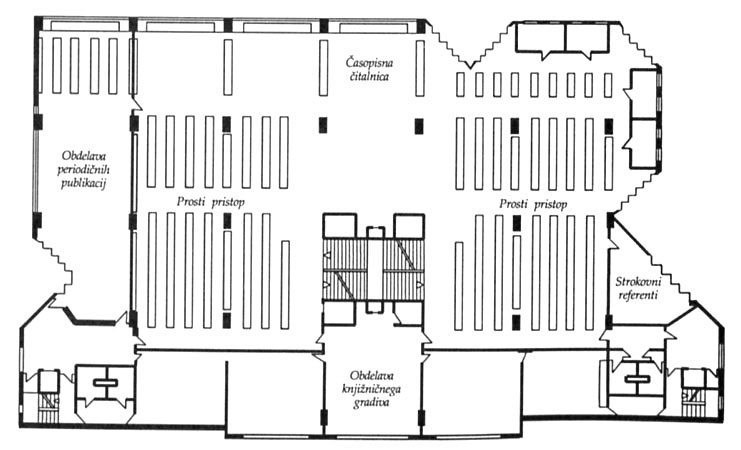
Notranjščina ne odraža členitve in raznolikosti zunanjega plašča, pač pa preseneti z enovitostjo in odprtostjo tlorisa. Posebnost ureditve so bili povsem odprti prostori v vseh etažah, vizualne prepreke so edino oporni stebri, nosilci konstrukcije. Načelo odprtosti prostora, ki je tudi sicer ena od značilnosti Kocmutovih projektov, se je ujemalo z zahtevo knjižničarjev, da naj bo knjižno gradivo prosto dostopno. Branko Kocmut  je čitalnice radikalno in povsem razprl in jih povezal tudi z območji, odmerjenimi za delo strokovnih referatov. Projekt je predvidel skeletno konstrukcijo z zgolj tremi vertikalnimi komunikacijami: v sredini stavbe ter ob severnem in južnem stranskem vhodu. Severni stranski hod je namenjen zaposlenim, južni pa dostopu do kletnih skladišč, zato ima tudi dovoz za večji avtomobil. Tolikšna odprtost je kmalu naletela na pritožbe, zato so leta 1995 s steklenimi stenami razdelili prireditveni prostor z razstaviščem v prvem nadstropju od območja za izposojo, s pregradnimi stenami pa so zaprli tudi prostore za delo strokovnih referentov. Dodatne zasteklitve z namenom večje zvočne in toplotne izolacije znotraj stavbe so naredili še leta 1999.

V stavbo vstopamo z Gospejne ulice skozi zastekljen vetrolov na mestu, kjer se ob diagonalno zamaknjenih stenah stakneta oblikovno raznorodna dela zahodnega pročelja. Pritličje je namenjeno informacijski dejavnosti in garderobi, tu je tudi Turnerjeva čitalnica, kjer so bralcem na voljo dnevni časniki. Široko enoramno stopnišče nas popelje v prvo nadstropje. Hoja po stopnišču je eno lepših doživetij v knjižnici, saj se nam postopoma razkriva pogled na majhno likovno razstavišče, ki je izvrsten primer t. i. »bele kocke« z odprto prednjo stranico. Likovno razstavišče v UKM slovi pri umetnikih, ki cenijo vizualno učinkovitost dobro obiskanega prostora. Neposredno ob likovnem razstavišču je prostor za knjižnične razstave v vitrinah. V jugozahodnem delu prvega nadstropja je Glazerjeva dvorana s 100 sedeži za konferenčno in sorodne dejavnosti. Imenovana je po dolgoletnem ravnatelju in pesniku Janku Glazerju (1893-1975; ravnatelj knjižnice je bil med letoma 1931 in 1959 s prekinitvijo med drugo svetovno vojno). Za stekleno steno je pult za izposojo gradiva, hkrati pa so tu že tudi mesta za bralce. Večina strokovnih služb je umeščena v prvo nadstropje. V dveh višjih etažah je gradivo z različnih področij postavljeno v prostem dostopu. V zgornjem, četrtem nadstropju, so upravni prostori, od koder je možen dostop na manjšo teraso. Dvoramno stopnišče za komunikacijo med višjimi etažami je v središču stavbe, kjer je tudi dvigalo. Drugo nadstropje je po tlorisu enako prvemu, funkcijsko pa je namenjeno zgolj uporabnikom, kar velja tudi za tretje nadstropje, ki pa je po površini manjše, saj je arhitekt na tej višini zahodno pročelje stavbe že zamaknil in izmaknil pogledom z ulice. Četrto nadstropje je namenjeno upravnim in sorodnim prostorom.

Notranjo opremo je načrtoval arhitekt Miro Zdovc (roj. 1927), vendar je bila le delno realizirana, saj je zmanjkalo denarja za lesene knjižne police - zadovoljiti so se morali s industrijsko izdelanimi kovinskimi. Kljub večkratnim posegom, ki so sledili zahtevam zaposlenih in uporabnikov in potrebam po vzdrževalnih delih, je ohranjen prvotni značaj stavbe. Ob zadnji prenovi v letu 2008 so dotlej sivo talno oblogo zamenjali z zamolklo rdečo.

 

Literatura:

Jože CURK, Maribor. Vodnik po mestu in bližnji okolici, Maribor 2000.

Bruno HARTMAN, O novi stavbi knjižnice Maribor, Knjižnica, 25, 1981, str. 62-80.

100 let Univerzitetne knjižnice Maribor. 1903-2003 (ur. Vlasta Stavbar, Sandra Kurnik Zupanič), Maribor 2003.

Jožica LEŠNIK ŠVAJGER, Prispevek bratov Kocmut k mariborski arhitekturi in urbanizmu, Maribor 2001 (tipkopis diplomske naloge).

Zbornik ob devetdesetletnici Univerzitetne knjižnice Maribor (1903-1993) in stoletnici rojstva Janka Glazerja (1893-1993) ur. Bernard Rajh), Maribor 1993.

 

Marjeta Ciglenečki

(29. 9. 2014)

Osnovni podatki

Autor Branko Kocmut; Miro Zdovc (notranja oprema)
Lokacija 46.559196, 15.642563

Lokacija